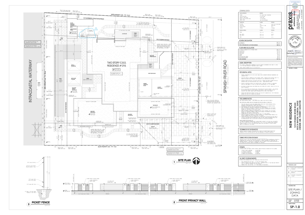
1215 Spanish River Road

admin Completed Projects

1215 Spanish River Road


2025 Silver Aurora Award Winner Best Custom Home 5,000 sq.ft. to 10,000 sq.ft.

2025 Prism Platinum Award Winner for Best New Construction Single-Family over 6,000 sq. ft.

2025 Prism Gold Award Winner for New Construction: One-of-a-Kind Custom Family

This stunning house spans over 8,090 sq. ft. and boasts a master bedroom with his and hers bathrooms, an outdoor patio shower with water features, and luxurious his and hers closets. Additionally, it features 3 guest bedrooms with attached bathrooms, maid quarters with a bathroom, and a powder room. The house also comprises a spacious kitchen, family room, great room (living and dining), 2 offices, a loft, and laundry facilities on both the 1st and 2nd floors. There is also a detached gym with a cabana bathroom and sauna. The outdoor space is equally impressive with a pool, fire pit, and an outdoor BBQ kitchen area.

  • 11,407 sq. ft. total build
  • 8,090 sq. ft. under air
  • 384 sq. ft. Gym & Sauna Spa
  • 148 ft. Seawall & Dock

Architect: Praxis Architecture

Images For This Project

« of 5 »